行业动态

了解最新公司动态及行业资讯

含油土壤修复设备都包括哪些东西

2018-05-04 02:43:05 259 编辑:admin 来源:本站
油田在钻井,采油,原油集输等过程中均会产生地面益油,地面益油的表层可以进行机械回收,原油渗入土层则形成含油土壤。含油土壤孔隙度变小,质地板结,如不及时治理,不仅毒害土壤的生物,还会污染周围地表水和地下水。含油土壤可进行焚烧,填埋,清洗处理以及就地生物处理,现有的多数处理方式为就地燃烧。虽然效果好,但是能耗大,对环境污染严重,且不能对含油土壤就地处理,致使工程量巨大。一种含油土壤修复设备的出现解决了以上的大大难题。因它可移动式对含油土壤就地修复,处理方便,高效节能,不会对环境造成二次污染。
含油土壤修复设备
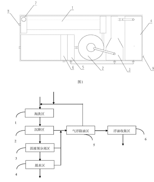
含油土壤修复设备撬块,所述设备包括淘洗区、沉降区、固液预分离区、脱水区、气浮除油区和浮油收集区,含油土壤及清水进入淘洗区进行充分淘洗,使油污从土壤表面分离,混合物自流至沉降区,使土壤与水和油污分离,含水土壤就进入固液预分离区,将土壤预脱水,再进入脱水区深度脱水,土壤达标排出设备。沉降区分离出来的水和油污自流进气浮除油区,通过气浮大表面积微气泡的粘附与上浮作用,将油污从水中分离至浮油收集区,清水回至淘洗区重复利用。本实用新型的含油土壤修复撬块设备,移动式地对含油土壤就地处理,处理方便,高效节能,且不会对环境造成二次污染。

30

装备制造经验

立即免费获取土壤修复方案

为用户提供及时、高效、便捷的服务

在线咨询
AG视讯环境希望与你携手,共创美好未来...
5